人生就像是一條時而曲折、時而潛伏的河流,飛快疾馳地走過許多人生中對應的角色。
不斷往前,隨著身上肩負的重擔和責任越重,悠關每一件人事物的決定就不只是自己。
讓我們回到最原始的本心,一個屬於自己的獨處空間,即使上一刻的紛擾嘈雜,在這一秒,也能歸於平靜。

故事背景
男主人做為一位高層主管,由於工作的原因,他奔波於兩處住所,一處是與妻子和孩子們共同居住的主要住所,
另一處則是他遠赴事業而設的私人居所,由於工作繁忙,所以才有了這樣的生活模式。
如今他獨自在外肩負起重擔的同時,也期望獨自回到家中時,能夠放鬆疲憊的身軀轉換心境,
享受短暫而珍貴的休憩時光,為生活與工作之間打造一處靜謐的休憩港灣。
男主人做為一位高層主管,由於工作的原因,他奔波於兩處住所,一處是與妻子和孩子們共同居住的主要住所,
另一處則是他遠赴事業而設的私人居所,由於工作繁忙,所以才有了這樣的生活模式。
如今他獨自在外肩負起重擔的同時,也期望獨自回到家中時,能夠放鬆疲憊的身軀轉換心境,
享受短暫而珍貴的休憩時光,為生活與工作之間打造一處靜謐的休憩港灣。

設計議題
在這個節奏飛快的時代,現代人往往被外界的喧囂與忙碌所包圍。
繁重的工作、無盡的責任和快節奏的生活,使我們逐漸忽略了內心深處真正的需求。
「寧靜與放鬆」不再只是生活中的需求,而已然成為心靈深處不可或缺的必需品。
如何在這樣的環境中找到一片屬於自己的寧靜天地,成為了當代設計的一大挑戰。
這樣的空間不僅是一個休憩的場所,它也許是一次心靈的重生,
幫助人們在現代社會的壓力中,找到真正的自我與寧和,
在這樣的空間裡,是否能忘卻繁忙的叨擾,
重新思考我們如何在生活中重拾內在平衡的橋樑?
繁重的工作、無盡的責任和快節奏的生活,使我們逐漸忽略了內心深處真正的需求。
「寧靜與放鬆」不再只是生活中的需求,而已然成為心靈深處不可或缺的必需品。
如何在這樣的環境中找到一片屬於自己的寧靜天地,成為了當代設計的一大挑戰。
這樣的空間不僅是一個休憩的場所,它也許是一次心靈的重生,
幫助人們在現代社會的壓力中,找到真正的自我與寧和,
在這樣的空間裡,是否能忘卻繁忙的叨擾,
重新思考我們如何在生活中重拾內在平衡的橋樑?


設計概念
剝離事物繁複的外在,重新找回最純粹與基本的需求——一個真正屬於自己、能夠放鬆身心的獨處空間。
從屋主喜愛的藍色作為設計起點,以一方寧靜、一抹天空藍、一處角落,一致的質樸溫潤,賦予了空間詩意與寧和的享受。
探究空間的本質,回到最原始的本心,一個屬於自己的獨處空間,回到家的純粹,是本案的設計核心,
讓人們在繁忙的生活中,能夠尋回內心的寧靜與平衡。
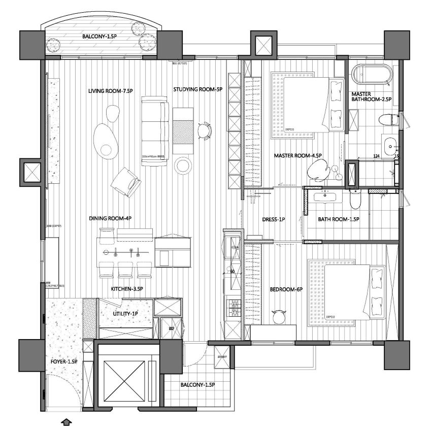
▲原始平面圖
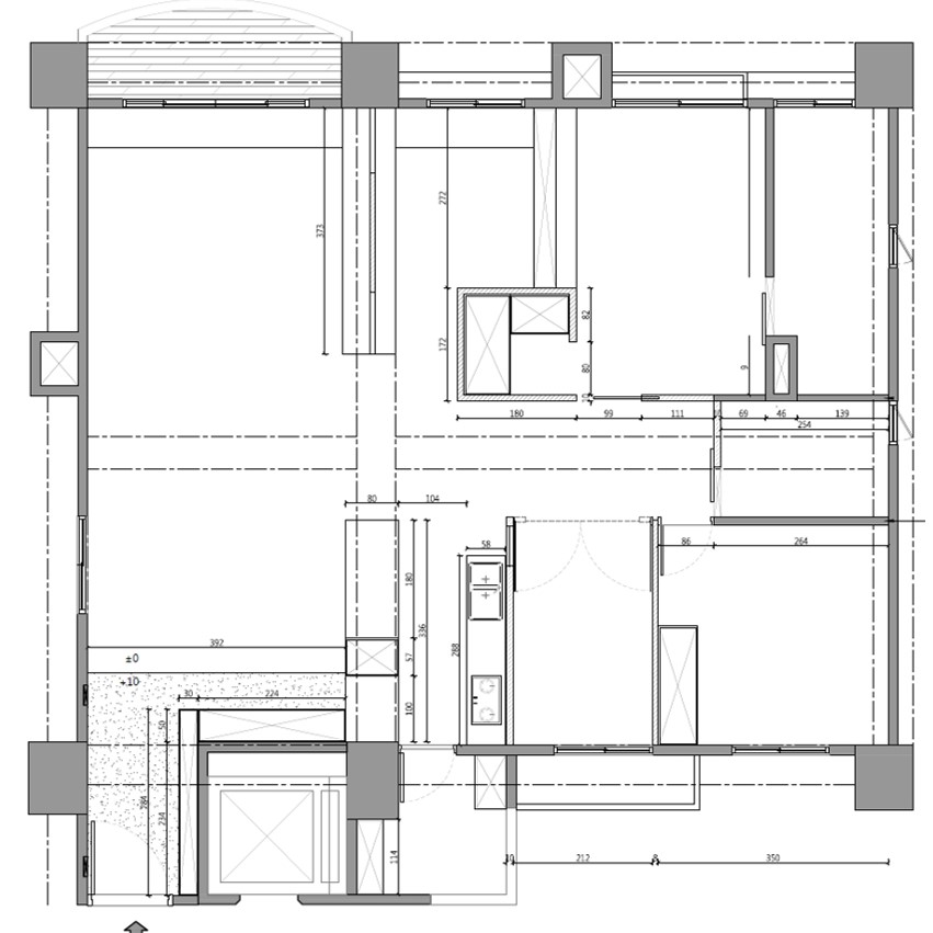
▲現況平面圖
▲客廳3D圖
▲客廳3D圖

▲客廳3D圖
從屋主喜愛的藍色作為設計起點,以一方寧靜、一抹天空藍、一處角落,一致的質樸溫潤,賦予了空間詩意與寧和的享受。
探究空間的本質,回到最原始的本心,一個屬於自己的獨處空間,回到家的純粹,是本案的設計核心,
讓人們在繁忙的生活中,能夠尋回內心的寧靜與平衡。
▲原始平面圖
▲現況平面圖
▲客廳3D圖
▲客廳3D圖
▲客廳3D圖

創意巧思
以純粹為核心,重新梳理了格局與動線,使空間從繁瑣轉向明快,從陰暗走向明朗。
在原本多重交錯的動線中,空間展現出負擔與紛亂,它不僅影響了使用的便利性,也阻隔了自然光線的流動,進而壓縮了整體氛圍的寬廣感受。
為此以「減法設計」,以純粹的格局取代多餘的規劃,捨去冗雜的分隔,讓空間形態更為簡潔流暢。
動線的重新劃定則強調直觀性與連續性,實現分明且自然的流動,使人能以最輕鬆的姿態穿梭於各功能區域之間。
寬廣的區域成為了心靈沉澱的場域,去除多餘的複雜性後,獨處的時刻得以被深刻感知,讓生活回歸簡單,也讓內心得以自由伸展。
在原本多重交錯的動線中,空間展現出負擔與紛亂,它不僅影響了使用的便利性,也阻隔了自然光線的流動,進而壓縮了整體氛圍的寬廣感受。
為此以「減法設計」,以純粹的格局取代多餘的規劃,捨去冗雜的分隔,讓空間形態更為簡潔流暢。
動線的重新劃定則強調直觀性與連續性,實現分明且自然的流動,使人能以最輕鬆的姿態穿梭於各功能區域之間。
寬廣的區域成為了心靈沉澱的場域,去除多餘的複雜性後,獨處的時刻得以被深刻感知,讓生活回歸簡單,也讓內心得以自由伸展。
以「藍」為核心,在書房中擘劃出一片詩意的藍天,彷彿將整片晴空引入室內。
一抹蔚藍,就像蒼穹的擁抱,綻放出寧靜、清新與自由的奔放,展現安靜而優雅的空間姿態,
宛如在家就能看見大雁飛過的翱翔,享受有如雲朵飄然的自由,體驗到自然的流動與生命的廣闊,使自身與空間形成一種融合關係。
藍色,作為象徵自由與遼闊的顏色,
在這片空間中自然舒展,是視覺的延展,也是精神的對話,
空間成為情感的容器,包覆著你我的靈魂,讓其與空間的每一處細節產生共鳴。
單一的線條、量體與曲面彼此包容交織,構築出如詩如畫的場域之美。
一抹蔚藍,就像蒼穹的擁抱,綻放出寧靜、清新與自由的奔放,展現安靜而優雅的空間姿態,
宛如在家就能看見大雁飛過的翱翔,享受有如雲朵飄然的自由,體驗到自然的流動與生命的廣闊,使自身與空間形成一種融合關係。
藍色,作為象徵自由與遼闊的顏色,
在這片空間中自然舒展,是視覺的延展,也是精神的對話,
空間成為情感的容器,包覆著你我的靈魂,讓其與空間的每一處細節產生共鳴。
單一的線條、量體與曲面彼此包容交織,構築出如詩如畫的場域之美。

同時三盞垂墜的吊燈有如藝術品,即像是正滴落的雨滴,
又似三隻輕盈飛舞的麻雀,靜靜懸於空間中,傳遞著一家三口的親密與羈絆。
燈光柔和地散落,宛若天空與雨滴交織的意象,將自然的詩意與家的溫暖悄然融合。
將平凡的燈具,化作意象的存在,成為空間中流動的情感符號,低語著生活的美好與親情的深厚。
將生機與靜謐巧妙平衡,雨滴般的垂燈述說著家的柔情,也象徵自由與活力。
湛藍天色不僅呼應了屋主珍藏的家具與一系列抽象藝術作品,更賦予空間一種獨特的寧靜詩意。
運用特殊塗料與樹幹彎曲般的自然紋理,彷彿寓意著生活本就不是一條筆直的路線,而是在迂迴蜿蜒和曲折之中,如此才更接近生命的本質。
同時以大地色系與天然材料的應用,巧妙地融入幾何圖形的結構中,形成一種兼具穩重與靈動的和諧之美。
簡約的線條與柔和的曲線交織,使空間中的光影如同時間般從容地滲透,在每一處細節之間流轉,讓材質的層次感與豐富性自然展現。
塑造了一種返璞歸真的靜謐氣質,更以細膩的手法營造出空間中的溫暖質感。
臥房的設計展現出滿溢生命力的春日氣息,薄荷綠作為主色調,宛如春日草木初生,為空間注入清新與活力,營造出如同大自然懷抱般的寧靜氛圍。
搭配霧光鍍銅色彩的燈罩,其柔和的線條彷彿清晨初探的朝曦,散發出溫潤的光影美感。
在這樣的空間中,自然的詩意與舒適的居住體驗完美結合,讓主臥成為一處安放心靈、擁抱自然的療癒之所。
每日忙碌後,最美好的事情莫過於給自己一段愜意的沐浴時光。
浴室的設計以深色調為基底,營造出沉靜而私密的放鬆氛圍。
牆面採用水波紋磁磚,透過紋理的交錯,宛如湖面在微風中輕輕蕩漾,將自然的靈動之美融入空間。
這片深邃而靜謐的角落,沉穩的色彩與湖面意象的交織,讓人置身於幽靜的湖畔,遠離塵囂,回歸內心的寧靜與平和。
當我們漫步於此,獨自感受寧靜,在靜謐的空間裡,時間彷彿放慢了腳步,
在夜深人靜之時,坐在一隅,靜靜凝望家中的每一件藝術品,手捧一杯熱茶,讓溫度在指尖流轉,
這是獨處時的奢侈,也是內心深處的歸屬。
恬然的時刻,讓人回歸本真,聆聽內心的聲音,感受那不為外界擾動的平和,細細品味寧靜獨有的溫度。
在這樣的片刻中,所有的壓力與焦慮似乎都被剝離,取而代之的是一份輕盈的自在。
寧靜,不僅是外在環境的安靜,更是一種與回歸自己的心靈狀態,是忙碌生活中無可替代的慰藉,
這樣的空間,它是詩意與質感的融合,是生活與自然的交匯,也是一個讓人身心舒展的棲息之所。
又似三隻輕盈飛舞的麻雀,靜靜懸於空間中,傳遞著一家三口的親密與羈絆。
燈光柔和地散落,宛若天空與雨滴交織的意象,將自然的詩意與家的溫暖悄然融合。
將平凡的燈具,化作意象的存在,成為空間中流動的情感符號,低語著生活的美好與親情的深厚。
將生機與靜謐巧妙平衡,雨滴般的垂燈述說著家的柔情,也象徵自由與活力。


湛藍天色不僅呼應了屋主珍藏的家具與一系列抽象藝術作品,更賦予空間一種獨特的寧靜詩意。
運用特殊塗料與樹幹彎曲般的自然紋理,彷彿寓意著生活本就不是一條筆直的路線,而是在迂迴蜿蜒和曲折之中,如此才更接近生命的本質。
同時以大地色系與天然材料的應用,巧妙地融入幾何圖形的結構中,形成一種兼具穩重與靈動的和諧之美。
簡約的線條與柔和的曲線交織,使空間中的光影如同時間般從容地滲透,在每一處細節之間流轉,讓材質的層次感與豐富性自然展現。
塑造了一種返璞歸真的靜謐氣質,更以細膩的手法營造出空間中的溫暖質感。


搭配霧光鍍銅色彩的燈罩,其柔和的線條彷彿清晨初探的朝曦,散發出溫潤的光影美感。
在這樣的空間中,自然的詩意與舒適的居住體驗完美結合,讓主臥成為一處安放心靈、擁抱自然的療癒之所。

浴室的設計以深色調為基底,營造出沉靜而私密的放鬆氛圍。
牆面採用水波紋磁磚,透過紋理的交錯,宛如湖面在微風中輕輕蕩漾,將自然的靈動之美融入空間。
這片深邃而靜謐的角落,沉穩的色彩與湖面意象的交織,讓人置身於幽靜的湖畔,遠離塵囂,回歸內心的寧靜與平和。

當我們漫步於此,獨自感受寧靜,在靜謐的空間裡,時間彷彿放慢了腳步,
在夜深人靜之時,坐在一隅,靜靜凝望家中的每一件藝術品,手捧一杯熱茶,讓溫度在指尖流轉,
這是獨處時的奢侈,也是內心深處的歸屬。
恬然的時刻,讓人回歸本真,聆聽內心的聲音,感受那不為外界擾動的平和,細細品味寧靜獨有的溫度。
在這樣的片刻中,所有的壓力與焦慮似乎都被剝離,取而代之的是一份輕盈的自在。
寧靜,不僅是外在環境的安靜,更是一種與回歸自己的心靈狀態,是忙碌生活中無可替代的慰藉,
這樣的空間,它是詩意與質感的融合,是生活與自然的交匯,也是一個讓人身心舒展的棲息之所。


情感回饋
生活是一場與人生的對話,透過空間的塑造,反映對生活的態度與理解。
生活本身不僅是一連串的日常選擇,更是一種可以被具象化的表現。
一個人對生活的感知,會隨著時間的推移逐漸沉澱,最終凝聚成他真正渴望的模樣。
而設計的價值,便是在這漫長的過程中,成為觸發這些感悟的引信。
在這棟房子裡,我們不是被動的接受者,而是空間的核心。
設計師的角色,是引導、傾聽、捕捉你我內心最深處對生活向往的聲音。
那些未曾被言說的渴望,那些在日常忙碌中被忽略的細節,透過設計的語言得以被重新拾起。
這樣的空間,不僅是一個居所,更像是一面鏡子,折射出彼此對自我與世界的理解。
Home Data
地點:新竹
成員:1(主要成員一位,偶有家人來訪)
坪數:41坪
房屋類型:中古屋
格局:2房2廳2衛
主要建材:木皮/鐵件/塗料-MORTEX/LIMESTONE/水磨石/DIUINE TREE曲線木地板/
edHOUSE 系統櫥櫃/廚具-LEICHT/衛浴-DURAVIT/禾立進口磁磚
生活是一場與人生的對話,透過空間的塑造,反映對生活的態度與理解。
生活本身不僅是一連串的日常選擇,更是一種可以被具象化的表現。
一個人對生活的感知,會隨著時間的推移逐漸沉澱,最終凝聚成他真正渴望的模樣。
而設計的價值,便是在這漫長的過程中,成為觸發這些感悟的引信。
在這棟房子裡,我們不是被動的接受者,而是空間的核心。
設計師的角色,是引導、傾聽、捕捉你我內心最深處對生活向往的聲音。
那些未曾被言說的渴望,那些在日常忙碌中被忽略的細節,透過設計的語言得以被重新拾起。
這樣的空間,不僅是一個居所,更像是一面鏡子,折射出彼此對自我與世界的理解。
Home Data
地點:新竹
成員:1(主要成員一位,偶有家人來訪)
坪數:41坪
房屋類型:中古屋
格局:2房2廳2衛
主要建材:木皮/鐵件/塗料-MORTEX/LIMESTONE/水磨石/DIUINE TREE曲線木地板/
edHOUSE 系統櫥櫃/廚具-LEICHT/衛浴-DURAVIT/禾立進口磁磚






















































集團官網
採用全球最先進SSL 256bit傳輸加密機制