陽光斜落,微風輕拂,光影於空間中輕輕遊走,彷彿時間也放緩了步調。
這裡不急於述說繁複的故事,而是靜靜容納一場無聲的對談——關於日常的從容、自在的安然,以及歲月靜好的細水長流。
當燈光緩緩亮起,溫暖的光暈漸漸鋪展,家的溫度在這片寧靜的天地間悄然綻放,細膩而深遠。

故事背景
繁忙的城市節奏,讓人渴望一處能真正歇息的空間。
居住於此的是一對熱愛生活的夫妻,他們的日常,充滿著藝術的筆觸與文學的韻律。
畫布上的色彩、書頁間的字句,交織出他們豐富的精神世界。
他們沒有選擇多房而擁擠的格局,而是以空間為畫布,讓光線、清風與情感自由流轉。
這個家,是一場關於時光、情感與藝術的共鳴,是一處能讓人卸下防備、傾聽內心的靜謐之所。
在這裡,日常即是藝術,生活即是詩歌,歲月沉澱成獨特的韻律,悠然且雋永。
繁忙的城市節奏,讓人渴望一處能真正歇息的空間。
居住於此的是一對熱愛生活的夫妻,他們的日常,充滿著藝術的筆觸與文學的韻律。
畫布上的色彩、書頁間的字句,交織出他們豐富的精神世界。
他們沒有選擇多房而擁擠的格局,而是以空間為畫布,讓光線、清風與情感自由流轉。
這個家,是一場關於時光、情感與藝術的共鳴,是一處能讓人卸下防備、傾聽內心的靜謐之所。
在這裡,日常即是藝術,生活即是詩歌,歲月沉澱成獨特的韻律,悠然且雋永。

設計議題
在忙碌的工作過後,真正的放鬆成為每個人心底深藏的渴望。
如何將家轉化為一個能徹底釋放心靈的庇護所,成為設計的核心課題。
如何突破狹窄與束縛的界限,創造出開放而舒適的居住空間,讓每一位居住者都能在此找到真正的寧靜與釋放。
無論是寬敞的客廳,或是流暢的空間布局,皆旨在營造一種輕盈、自由的感覺,讓人在這片空間中,找到屬於自己的平靜與自在。
然而,在這樣的設計過程中,我們不禁反思:如何才能讓人在這片日常的生活空間中,真正感受到放鬆與歸屬感?

如何將家轉化為一個能徹底釋放心靈的庇護所,成為設計的核心課題。
如何突破狹窄與束縛的界限,創造出開放而舒適的居住空間,讓每一位居住者都能在此找到真正的寧靜與釋放。
無論是寬敞的客廳,或是流暢的空間布局,皆旨在營造一種輕盈、自由的感覺,讓人在這片空間中,找到屬於自己的平靜與自在。
然而,在這樣的設計過程中,我們不禁反思:如何才能讓人在這片日常的生活空間中,真正感受到放鬆與歸屬感?

設計概念
「歲月靜好」是這片空間的核心靈魂,設計以開放式格局為基底,將流動的清風與柔和的光線自然引入室內,讓每個角落都承載著時間的痕跡與自然的溫度。
每一步的移動,彷彿都與心靈展開一場無聲的對話,引領人回歸內在的平靜。
以留白不過度雕琢的設計語彙,賦予了空間寧靜與自由的雙重意象,同時也為生活與思想留出了生長的餘地。
從美學的呈現,到生活哲學的詮釋,都讓彼此在每一個瞬間,都能體會到「歲月靜好」的深意,並在這樣的氛圍中,找到心靈的釋放與平靜。
空間與時間在此交織,光與風的流動成為生活的背景,讓人自然而然地沉浸於這份靜謐與美好之中,感受歲月的溫柔與生命的從容。
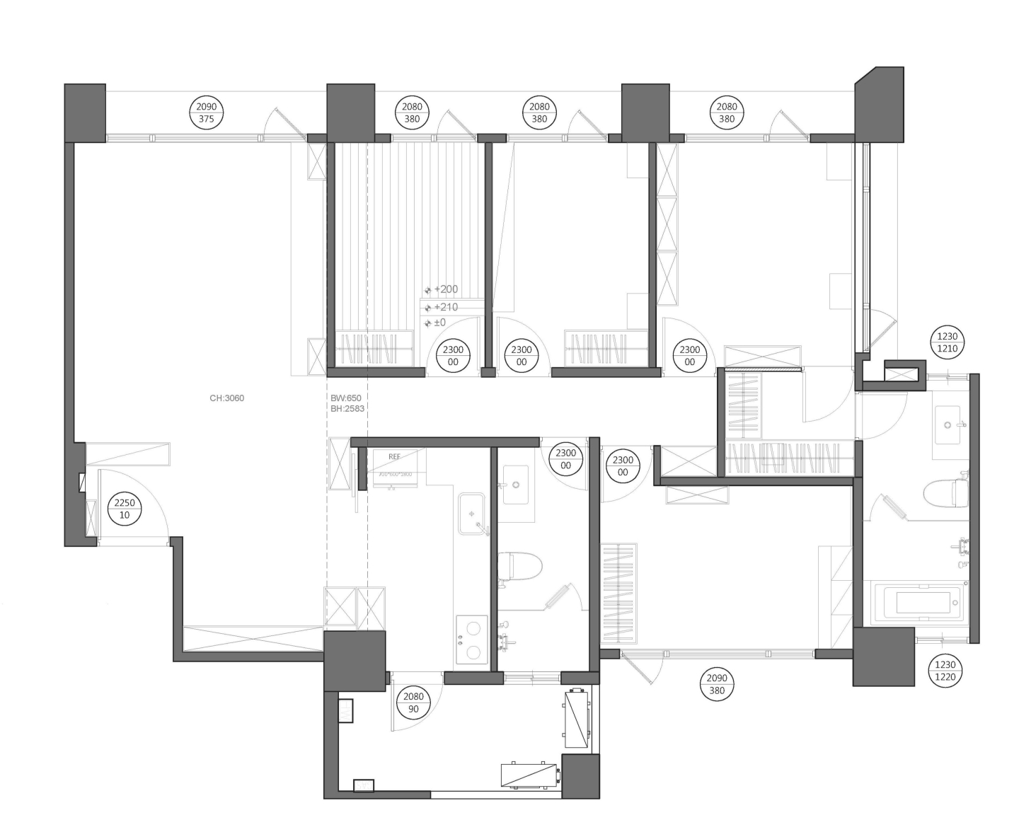
▲原始平面圖
▲現況平面圖
▲客廳3D圖
▲客廳3D圖
▲玄關3D圖
▲浴廁3D圖
每一步的移動,彷彿都與心靈展開一場無聲的對話,引領人回歸內在的平靜。
以留白不過度雕琢的設計語彙,賦予了空間寧靜與自由的雙重意象,同時也為生活與思想留出了生長的餘地。
從美學的呈現,到生活哲學的詮釋,都讓彼此在每一個瞬間,都能體會到「歲月靜好」的深意,並在這樣的氛圍中,找到心靈的釋放與平靜。
空間與時間在此交織,光與風的流動成為生活的背景,讓人自然而然地沉浸於這份靜謐與美好之中,感受歲月的溫柔與生命的從容。
▲原始平面圖
▲現況平面圖
▲客廳3D圖
▲客廳3D圖
▲玄關3D圖
▲浴廁3D圖創意巧思
玄關,作為家的第一印象,不僅是空間的過渡,更承載著回歸家中的心境與儀式感。
在這處設計中,木質櫃體作為隔擋,巧妙地融合了風水與實用性,其溫潤質感與自然紋理為空間注入一份舒適與平和,彷彿在踏入家門的瞬間,外界的緊張與壓力便悄然消散。
櫃體之間特意留出的縫隙,讓陽光得以輕盈滲透,形成溫暖而柔和的光影交錯,
宛如象徵著心靈的贖光——照亮每一個回到家中的人,心中都能充滿希望與光明,為居住者的每一天注入嶄新的能量與動力。
簡約的設計語彙中蘊含著深刻的意涵,為生活帶來安定與舒適的同時,也能感受到放鬆與愉悅的心境,開啟屬於家的美好篇章。
在這處設計中,木質櫃體作為隔擋,巧妙地融合了風水與實用性,其溫潤質感與自然紋理為空間注入一份舒適與平和,彷彿在踏入家門的瞬間,外界的緊張與壓力便悄然消散。
櫃體之間特意留出的縫隙,讓陽光得以輕盈滲透,形成溫暖而柔和的光影交錯,
宛如象徵著心靈的贖光——照亮每一個回到家中的人,心中都能充滿希望與光明,為居住者的每一天注入嶄新的能量與動力。
簡約的設計語彙中蘊含著深刻的意涵,為生活帶來安定與舒適的同時,也能感受到放鬆與愉悅的心境,開啟屬於家的美好篇章。

打破既有格局的限制,少了牆體的束縛,客廳以開闊的視野展現出空間的從容與自在。
柔灰色的布製沙發,輕柔地圍塑出一處隨性而親和的交流場域,搭配一張紋理獨特的原木茶几,彷彿大地的肌理在指尖蔓延,為空間注入溫潤而自然的質感。
窗邊的書架錯落有致,綠意盎然的植栽點綴其間,營造出一處沉浸式的閱讀角落。
陽光緩緩灑落,書頁輕輕翻動,這些微小而美好的片刻交織成日常的風景,讓人在靜謐中感受時間的流動與生活的溫度。
柔灰色的布製沙發,輕柔地圍塑出一處隨性而親和的交流場域,搭配一張紋理獨特的原木茶几,彷彿大地的肌理在指尖蔓延,為空間注入溫潤而自然的質感。
窗邊的書架錯落有致,綠意盎然的植栽點綴其間,營造出一處沉浸式的閱讀角落。
陽光緩緩灑落,書頁輕輕翻動,這些微小而美好的片刻交織成日常的風景,讓人在靜謐中感受時間的流動與生活的溫度。


環繞於客廳一側與後方的,正是靠窗而設的榻榻米空間——這個家的靜心之地。
白天,這裡是隨性盤坐、翻閱書頁或落筆書寫的角落,夜晚則轉化為冥想與放鬆的專屬場域,讓心緒在寧靜中緩緩沉澱。
榻榻米的低矮設計,讓視線與窗外風景自然相融,光影的變幻與四季的更迭在此一覽無遺,
春日的新綠、夏日的蟬鳴、秋日的紅葉、冬日的暖陽,窗外的山景,皆成為空間的一部分,讓人在室內也能感受自然的脈動。
內外空間無界交織,隨著日光的緩移,晨昏的流轉在空間中留下詩意的痕跡,賦予這片角落一種流動的靜美,讓人在其中感受時間的溫柔與生活的從容。
在繁忙的日常中,找到一處可以停歇、沉澱的所在,讓心靈回歸平靜,並在時間的流動中,感受歲月的靜好與生命的豐盈。每一刻的停留,都是一次與自我、與彼此的深度對談。
開放式餐廳與廚房相連,深色石質餐桌與溫潤木質餐椅相互平衡,營造沉穩而溫馨的用餐氛圍,為整體空間注入一絲安定。
上方懸掛的吊燈以天然藤編點綴,光線透過編織紋理輕柔漫散,投下溫暖而富有層次的光影,使日常的用餐時光更添質感與情調。
中島的一側,特別貼心規劃出寵物專屬的用餐區,讓毛孩自然而然地融入家庭生活,使每一個成員都能在這個空間中找到屬於自己的角落,細膩地詮釋家的溫度與包容。
衛浴空間以溫潤的木質與低飽和色調的塗料鋪陳,營造出柔和而舒適的氛圍,讓身心在此獲得完全的釋放與療癒。
鏡櫃設計簡潔俐落,兼具美感與實用性,細膩的收納規劃讓日常用品井然有序。
乾濕分離的配置提升了使用的流暢性,更讓每一寸空間都能發揮最大效能。
大片玻璃隔間讓視覺自然延伸,保留了空間的通透感,同時也讓光線得以自由流動,映照出材質的質感與層次。
沐浴於此,不再只是日常的步驟,而是一場沉浸式的身心放鬆儀式,讓人在水聲與光影的交織中,感受時間的靜止與內心的平靜。
白天,這裡是隨性盤坐、翻閱書頁或落筆書寫的角落,夜晚則轉化為冥想與放鬆的專屬場域,讓心緒在寧靜中緩緩沉澱。
榻榻米的低矮設計,讓視線與窗外風景自然相融,光影的變幻與四季的更迭在此一覽無遺,
春日的新綠、夏日的蟬鳴、秋日的紅葉、冬日的暖陽,窗外的山景,皆成為空間的一部分,讓人在室內也能感受自然的脈動。
內外空間無界交織,隨著日光的緩移,晨昏的流轉在空間中留下詩意的痕跡,賦予這片角落一種流動的靜美,讓人在其中感受時間的溫柔與生活的從容。
在繁忙的日常中,找到一處可以停歇、沉澱的所在,讓心靈回歸平靜,並在時間的流動中,感受歲月的靜好與生命的豐盈。每一刻的停留,都是一次與自我、與彼此的深度對談。


開放式餐廳與廚房相連,深色石質餐桌與溫潤木質餐椅相互平衡,營造沉穩而溫馨的用餐氛圍,為整體空間注入一絲安定。
上方懸掛的吊燈以天然藤編點綴,光線透過編織紋理輕柔漫散,投下溫暖而富有層次的光影,使日常的用餐時光更添質感與情調。
中島的一側,特別貼心規劃出寵物專屬的用餐區,讓毛孩自然而然地融入家庭生活,使每一個成員都能在這個空間中找到屬於自己的角落,細膩地詮釋家的溫度與包容。

臥室延續自然的設計語彙,選用淺色木地板與米色的單品,營造柔和的休憩氛圍。大片窗戶搭配輕透紗簾,使晨光輕灑床沿,喚醒舒適的一天。

鏡櫃設計簡潔俐落,兼具美感與實用性,細膩的收納規劃讓日常用品井然有序。
乾濕分離的配置提升了使用的流暢性,更讓每一寸空間都能發揮最大效能。
大片玻璃隔間讓視覺自然延伸,保留了空間的通透感,同時也讓光線得以自由流動,映照出材質的質感與層次。
沐浴於此,不再只是日常的步驟,而是一場沉浸式的身心放鬆儀式,讓人在水聲與光影的交織中,感受時間的靜止與內心的平靜。

情感回饋
空間的氛圍,如同一首低吟的詩,隨著晨昏光影的變化,輕輕流轉。
在這裡,生活不再被快節奏綑綁,而是回歸一種純粹的自在與從容。
清晨,陽光穿透灑落在柔軟的地毯上,細碎的光影如跳躍的音符,映照著書頁上的文字,也映照著內心的平靜與安寧。
夜晚,柔和的燈光從角落緩緩暈染,映照在溫潤的木質地上,伴隨著翻閱手帳的沙沙聲與筆尖的輕觸,將日常的點滴化為紙上的溫柔記憶。
時間在此彷彿放慢了腳步,讓人能夠細細品味每一刻的靜好,感受生活最真實的溫度與質感。
Home Data
地點:萬芳
案名:九昱十美
成員:夫妻
坪數:33
房屋類型:中古屋
格局:一房一廳兩辦公室
主要建材:SPIVER塗料、ED HOUSE櫥櫃
空間的氛圍,如同一首低吟的詩,隨著晨昏光影的變化,輕輕流轉。
在這裡,生活不再被快節奏綑綁,而是回歸一種純粹的自在與從容。
清晨,陽光穿透灑落在柔軟的地毯上,細碎的光影如跳躍的音符,映照著書頁上的文字,也映照著內心的平靜與安寧。
夜晚,柔和的燈光從角落緩緩暈染,映照在溫潤的木質地上,伴隨著翻閱手帳的沙沙聲與筆尖的輕觸,將日常的點滴化為紙上的溫柔記憶。
時間在此彷彿放慢了腳步,讓人能夠細細品味每一刻的靜好,感受生活最真實的溫度與質感。

Home Data
地點:萬芳
案名:九昱十美
成員:夫妻
坪數:33
房屋類型:中古屋
格局:一房一廳兩辦公室
主要建材:SPIVER塗料、ED HOUSE櫥櫃
















集團官網
採用全球最先進SSL 256bit傳輸加密機制