在城市的繁華與喧囂,塵埃與忙碌構成了都市的沉重,
行人如同影子般匆匆而過,一束耀眼的光芒,形成強烈對比,
彷彿述說著世間仍存在著璀璨的夢想與渴望,
是它們照亮了心靈,是沉澱也好輕盈也罷,
生命美好的那些瞬間都值得被永恆紀念。

行人如同影子般匆匆而過,一束耀眼的光芒,形成強烈對比,
彷彿述說著世間仍存在著璀璨的夢想與渴望,
是它們照亮了心靈,是沉澱也好輕盈也罷,
生命美好的那些瞬間都值得被永恆紀念。

故事背景
身為一家珠寶店,全新的改革代表了一種對傳統珠寶行業的價值思考,打破了過去對金飾的依賴,轉而專注於更年輕、更具創意的珠寶飾品。隨著時代的變遷,消費者的需求也再不斷演變,年輕一代渴望的不只是個裝飾品,更是一種個性的表達與情感連結的象徵。

身為一家珠寶店,全新的改革代表了一種對傳統珠寶行業的價值思考,打破了過去對金飾的依賴,轉而專注於更年輕、更具創意的珠寶飾品。隨著時代的變遷,消費者的需求也再不斷演變,年輕一代渴望的不只是個裝飾品,更是一種個性的表達與情感連結的象徵。

人物背景
夫妻二人以對珠寶的熱忱與專業為基礎,他們除了是店鋪的經營者,更是珠寶理念的主導者。擁有現代人的獨特眼光,跳脫傳統,將店面展現出屬於他們的風格。深深相信著,珠寶不僅僅只是物質的象徵,更是每個人內心故事的一部分。於是將這份信念注入到店鋪中,希望每一位走進來的顧客,都能感受到一種與眾不同的尊貴與親切,仿佛每一個角落都在輕聲訴說著對美好生活的期待。
夫妻二人以對珠寶的熱忱與專業為基礎,他們除了是店鋪的經營者,更是珠寶理念的主導者。擁有現代人的獨特眼光,跳脫傳統,將店面展現出屬於他們的風格。深深相信著,珠寶不僅僅只是物質的象徵,更是每個人內心故事的一部分。於是將這份信念注入到店鋪中,希望每一位走進來的顧客,都能感受到一種與眾不同的尊貴與親切,仿佛每一個角落都在輕聲訴說著對美好生活的期待。
設計概念
在喧囂的商業世界裡,如何打破傳統珠寶店的沉悶與距離感,
創造出一個讓顧客能夠輕鬆探索、同時與珠寶產生情感連結的空間?
時光與珠光的交錯,光影相隨、光韻圍繞。
在靜謐歲月的長廊中,珠寶店宛如溫柔的時光之盒,珍藏著光與影的輕語。
以開放與互動為筆,使每一處皆如水波輕漾,將空間的界限柔化,
以圓弧圈起珠寶,圈出心中所想,
讓顧客猶如徜徉在一段靜止的時光裡,與珠寶的光芒深情交會。
在喧囂的商業世界裡,如何打破傳統珠寶店的沉悶與距離感,
創造出一個讓顧客能夠輕鬆探索、同時與珠寶產生情感連結的空間?
時光與珠光的交錯,光影相隨、光韻圍繞。
在靜謐歲月的長廊中,珠寶店宛如溫柔的時光之盒,珍藏著光與影的輕語。
以開放與互動為筆,使每一處皆如水波輕漾,將空間的界限柔化,
以圓弧圈起珠寶,圈出心中所想,
讓顧客猶如徜徉在一段靜止的時光裡,與珠寶的光芒深情交會。
▲原況平面圖
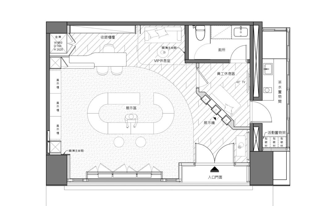
▲現況平面圖
▲門口朝店內3D圖
▲店內朝門口3D圖
▲門面3D圖
創意巧思
外觀設計透過優雅的白色門面與深色招牌形成強烈對比,打造出簡潔而不失奢華的氛圍。
招牌以低調的金色字體呈現,精緻而不張揚,恰到好處地體現了品牌的高雅定位。
展示櫥窗的設計則是整個外觀的亮點,巧妙地運用了不規則的幾何形態,彷彿一幅藝術作品,
將每一件珠寶以最優雅的姿態呈現在路人面前,吸引目光的同時,也增添了一份神秘感。
招牌以低調的金色字體呈現,精緻而不張揚,恰到好處地體現了品牌的高雅定位。
展示櫥窗的設計則是整個外觀的亮點,巧妙地運用了不規則的幾何形態,彷彿一幅藝術作品,
將每一件珠寶以最優雅的姿態呈現在路人面前,吸引目光的同時,也增添了一份神秘感。

透過弧形展示櫃的設計,打破了傳統珠寶店的封閉感,如同時間的流動般柔和,
每一個曲線都引領顧客探索珠寶的光影之美。空間不再是割裂與分隔,而是連續和流動。
顧客步入其中,隨著光線的變幻,不斷發現珠寶背後的情感力量,如同漫步於一段靜謐的旅程。
每一個曲線都引領顧客探索珠寶的光影之美。空間不再是割裂與分隔,而是連續和流動。
顧客步入其中,隨著光線的變幻,不斷發現珠寶背後的情感力量,如同漫步於一段靜謐的旅程。

運用柔和的光線宛如晨曦初照,輕輕拂過每一件珠寶,讓其散發出獨特的光芒。
這不僅是對珠寶的點綴,更是一場與光的共舞,是目光的深深吸引,是時間在此刻的停駐。
在空間的一隅,跟隨如畫般展示的珠寶,絲絨的沙發如同一片綠意的歸宿,靜靜等待著停下來的靈魂。
在這片柔軟的綠洲裡,顧客可以放下喧囂,與珠寶一同沉思,感受這份恬靜的時光。
這不僅是對珠寶的點綴,更是一場與光的共舞,是目光的深深吸引,是時間在此刻的停駐。
在空間的一隅,跟隨如畫般展示的珠寶,絲絨的沙發如同一片綠意的歸宿,靜靜等待著停下來的靈魂。
在這片柔軟的綠洲裡,顧客可以放下喧囂,與珠寶一同沉思,感受這份恬靜的時光。

設計情感
空間的構建,心靈的回響,這是一件動人心魄的珠寶,也是一段故事,更是一份情感的象徵,
從選材到色調的搭配,無不散發著溫柔的觸感與美的追求,明亮的光線流轉於展示櫃之間,
每一束光都精準而細膩,讓每一件珠寶皆能靜靜地講述著它的故事。
透過這樣的設計,讓每一位經過而停留的人們,留下對這個空間、對這份珠寶深刻的記憶。
空間的構建,心靈的回響,這是一件動人心魄的珠寶,也是一段故事,更是一份情感的象徵,
從選材到色調的搭配,無不散發著溫柔的觸感與美的追求,明亮的光線流轉於展示櫃之間,
每一束光都精準而細膩,讓每一件珠寶皆能靜靜地講述著它的故事。
透過這樣的設計,讓每一位經過而停留的人們,留下對這個空間、對這份珠寶深刻的記憶。















集團官網
採用全球最先進SSL 256bit傳輸加密機制